今月のおすすめ物件
Recommend
伊豆急伊豆高原分譲地 駅徒歩圏内 海を望む 温泉引込可
- リフォーム物件
- 海の見える
- 駅近
- 閑静な住環境
- 平坦地
- 駐車場2台以上
- 温泉
| お問合せ番号 | C-538 | ||
|---|---|---|---|
| 価格 | 2,680 万円 | 地域 | 伊豆急伊豆高原分譲地 |
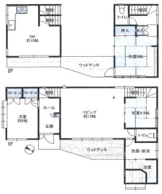
| 最寄り駅 | 伊豆急行線 城ケ崎海岸駅 | 間取り | 3LDK+屋根裏 |
| お問合せ番号 | C-538 |
|---|---|
| 価格 | 2,680 万円 |
| 地域 | 伊豆急伊豆高原分譲地 |
| 最寄り駅 | 伊豆急行線 城ケ崎海岸駅 |
| 間取り | 3LDK+屋根裏 |
販売図面を見る
物件おすすめポイント
閑静で住環境良好な「伊豆急伊豆高原分譲地」
大きなウッドデッキ、海を望みます
建物は3LDK+中2階地下収納+屋根裏収納
令和7年8月 内外装リフォーム済
(屋根・外壁塗装、新規フローリング敷設、新規シャワートイレ設置、浴室タイル張替、新規洗面台設置、新規システムキッチン、壁・天井クロス張替ほか)
温泉引込可
駐車場4台以上可
物件概要
| 所在地 | 静岡県伊東市富戸 | ||
|---|---|---|---|
| 交通 | 伊豆急行線 城ヶ崎海岸駅より約550m 徒歩約7分 | ||
| 建物構造 | 木造スレート葺2階建 | 築年月 | 昭和62(1987)年 |
| 土地面積 | 546㎡(約165.16坪) | 建物面積 | 111.38㎡(33.69坪) |
| 土地権利 | 所有権 | 地目 | 山林 |
| 都市計画 | 非線引 | 用途地域 | 無指定 |
| 建ぺい率 | 20% | 容積率 | 60% |
| 地勢 | 平坦地 | 駐車場 | 有 |
| 現況 | 空家 | 引渡日 | 相談 |
| 法令制限 | 静岡県条例(がけ条例)・景観法・宅地造成及び特定盛土等規制法・屋外広告物規制・分譲地規制・自然公園法 | ||
| 接道状況 | 北東側 幅員約5.5m 位置指定道路に接道 | ||
| 設備 | 私営水道・東京電力・個別浄化槽・個別PG | ||
| 備考 | 分譲地管理費等 伊豆高原親和会費 個人所有:19,200円/年 法人所有:78,600円/年 伊豆高原水道事業(伊豆急行) 水道基本料:880円/月 10立方まで 超過料 1立米につき120円 令和6年度固定資産税 約70,700/年 建築確認通知書の保存なし | ||
| 取引形態 | 一般 | 担当 | 加納 |
| 担当からの コメント | 伊豆高原分譲地、リフォーム済3LDK+豊富な収納、海と緑を楽しむ暮らし | ||
| 所在地 | 静岡県伊東市富戸 |
|---|---|
| 交通 | 伊豆急行線 城ヶ崎海岸駅より約550m 徒歩約7分 |
| 建物構造 | 木造スレート葺2階建 |
| 築年月 | 昭和62(1987)年 |
| 土地面積 | 546㎡(約165.16坪) |
| 建物面積 | 111.38㎡(33.69坪) |
| 土地権利 | 所有権 |
| 地目 | 山林 |
| 都市計画 | 非線引 |
| 用途地域 | 無指定 |
| 建ぺい率 | 20% |
| 容積率 | 60% |
| 地勢 | 平坦地 |
| 駐車場 | 有 |
| 現況 | 空家 |
| 引渡日 | 相談 |
| 法令制限 | 静岡県条例(がけ条例)・景観法・宅地造成及び特定盛土等規制法・屋外広告物規制・分譲地規制・自然公園法 |
| 接道状況 | 北東側 幅員約5.5m 位置指定道路に接道 |
| 設備 | 私営水道・東京電力・個別浄化槽・個別PG |
| 備考 | 分譲地管理費等 伊豆高原親和会費 個人所有:19,200円/年 法人所有:78,600円/年 伊豆高原水道事業(伊豆急行) 水道基本料:880円/月 10立方まで 超過料 1立米につき120円 令和6年度固定資産税 約70,700/年 建築確認通知書の保存なし |
| 取引形態 | 一般 |
| 担当 | 加納 |
| 担当からの コメント | 伊豆高原分譲地、リフォーム済3LDK+豊富な収納、海と緑を楽しむ暮らし |
お問合せ
CONTACT
ファミリーリゾートに関する
ご相談や物件に関するお問合せは、
下記よりWEBお問合せまたはお電話にて
お気軽にご連絡ください。















