今月のおすすめ物件
Recommend
閑静な住宅地 定住者多数 富士山望む ゆとりの4LDK 陽当り良好
- 陽当り良好
- 閑静な住環境
| お問合せ番号 | A-811 | ||
|---|---|---|---|
| 価格 | 480 万円 | 地域 | 三島市 大場 |
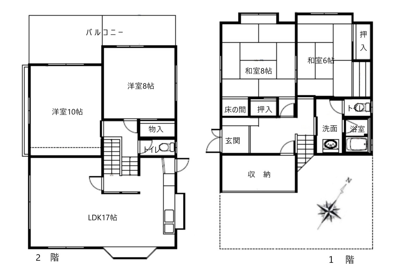
| 最寄り駅 | 東海道線 函南駅より約3km | 間取り | 4LDK |
| お問合せ番号 | A-811 |
|---|---|
| 価格 | 480 万円 |
| 地域 | 三島市 大場 |
| 最寄り駅 | 東海道線 函南駅より約3km |
| 間取り | 4LDK |
販売図面を見る
物件おすすめポイント
閑静な住宅地 定住者多数 富士山望む ゆとりの4LDK 陽当り良好
物件概要
| 所在地 | 静岡県三島市大場 | ||
|---|---|---|---|
| 交通 | 東海道線 函南駅より約3km | ||
| 建物構造 | 木造石綿セメント板葺2階建 | 築年月 | 昭和55年4月 |
| 土地面積 | 497.53㎡(150.50坪) | 建物面積 | 115.10㎡(34.81坪) |
| 土地権利 | 所有権 | 地目 | 宅地・山林 |
| 都市計画 | 市街化調整域 | 用途地域 | 無指定 |
| 建ぺい率 | 60% | 容積率 | 200% |
| 地勢 | 傾斜地 | 駐車場 | 無 |
| 現況 | 空家 | 引渡日 | 相談 |
| 法令制限 | |||
| 接道状況 | 北西側幅員約6mの公道に接道 | ||
| 設備 | 東京電力・公営水道・LPG・公共下水 | ||
| 備考 | |||
| 取引形態 | 一般 | 担当 | 村串 |
| 担当からの コメント | 閑静な住宅地 定住者多数 富士山望む ゆとりの4LDK 陽当り良好 | ||
| 所在地 | 静岡県三島市大場 |
|---|---|
| 交通 | 東海道線 函南駅より約3km |
| 建物構造 | 木造石綿セメント板葺2階建 |
| 築年月 | 昭和55年4月 |
| 土地面積 | 497.53㎡(150.50坪) |
| 建物面積 | 115.10㎡(34.81坪) |
| 土地権利 | 所有権 |
| 地目 | 宅地・山林 |
| 都市計画 | 市街化調整域 |
| 用途地域 | 無指定 |
| 建ぺい率 | 60% |
| 容積率 | 200% |
| 地勢 | 傾斜地 |
| 駐車場 | 無 |
| 現況 | 空家 |
| 引渡日 | 相談 |
| 法令制限 | |
| 接道状況 | 北西側幅員約6mの公道に接道 |
| 設備 | 東京電力・公営水道・LPG・公共下水 |
| 備考 | |
| 取引形態 | 一般 |
| 担当 | 村串 |
| 担当からの コメント | 閑静な住宅地 定住者多数 富士山望む ゆとりの4LDK 陽当り良好 |
お問合せ
CONTACT
ファミリーリゾートに関する
ご相談や物件に関するお問合せは、
下記よりWEBお問合せまたはお電話にて
お気軽にご連絡ください。

















